APPARTEMENT T4 A VENDRE - ST RAPHAEL LE DRAMONT - 110.13 m2 - 739 000 €
Description
Votre agence vous propose ce magnifique appartement atypique en duplex - rez-de jardin/1er, d'une surface
110.13m², et 137.43m² de jardin, et 46.46 m² de terrasse, bénéficiant d'une magnifique vue sur les roches rouges, et
d'une petite vue mer. Les prestations sont haut de gamme avec notamment la cuisine
entièrement aménagée et équipée, la climatisation réversible, les menuiseries en aluminium,
les douches à l'italienne avec robinetterie encastrée... les volumes sont généreux, et les
matériaux de qualité .
Ce bien rare sur ce secteur est composé d'une cuisine équipée et d'un séjour de 30.37m²,
de 3 chambres, une salle d'eau et une salle de bain et de 2 wc.
Un garage et une place de parking en sous-sol complètent cet appartement situé à 5 minutes
à pieds de la plage.
Les informations sur les risques auxquels ce bien est exposé sont disponibles sur le site Géorisques : www.georisques.gouv.fr
Réf : 507605
Nous aimons
- Sa localisation,
- son niveau de prestation ( dalles 60/60, cuisine entièrement aménagée et équipée, volets roulants électriques, ballon thermodynamique etc, climatisation réversible)
- Ses 2 dressings et nombreux placards.
Caractéristiques
Programme
- date de livraison : 1er semestre 2024
Aménagements
- surface du jardin : 137.43 m2 env.
- construit en : 2023
- cuisine : équipée et aménagée
- chauffage : individuel clim reversible
- climatisation : oui
Informations financières
- honoraires à charge : du vendeur
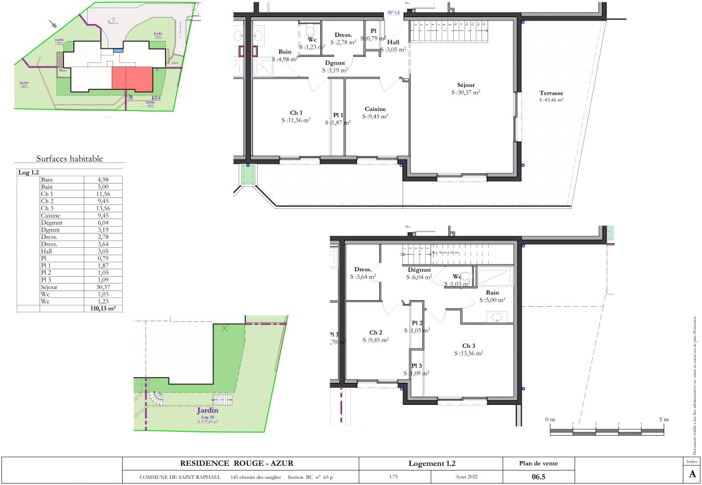
Quelques surfaces plus en détail
Surfaces données à titre indicatif – Non contractuelles :
- Hall d'entrée (niveau 1) : 3.1 m2
- Placard (niveau 1) : 0.8 m2
- Dressing (niveau 1) : 2.8 m2
- Wc (niveau 1) : 1.2 m2
- Salle d'eau (niveau 1) : 5 m2
- Chambre 1 (niveau 1) : 11.6 m2
- Placard (niveau 1) : 1.9 m2
- Cuisine (niveau 1) : 9.5 m2
- Sejour (niveau 1) : 30.4 m2
- Degagement (niveau 0) : 3.2 m2
- Dressing (niveau 0) : 3.6 m2
- Wc (niveau 0) : 1 m2
- Salle de bains (niveau 0) : 5 m2
- Chambre 2 (niveau 0) : 9.5 m2
- Placard (niveau 0) : 1.1 m2
- Chambre 3 (niveau 0) : 13.6 m2
- Placard (niveau 0) : 1.1 m2
- Degagement (niveau 1) : 6 m2
Voir quelques surfaces plus en détailImprimer la ficheVoir nos prestations et tarifs
L'agence
Denis immobilier
Saint Raphael
26 place sadi carnot
83700 ST RAPHAEL
Tél : 03.74.09.03.74
Votre conseiller pour avoir plus d'informations
Maëlys COLLIN
Tél : 03.74.09.03.74
Tél mobile : 06.06.29.29.06
Contactez-nous via ce formulaire ou appelez-nous pour visiter ce bien
Ecoles, transports, sorties et commerces sur ST RAPHAEL LE DRAMONT
St Raphael est une ville de 35 950 habitants. Côté immobilier, les habitations sont réparties en 28 % de maisons et 72 % d'appartements. On y trouve des commerces dont des supermarchés ou supérettes. On trouve des établissements scolaires à St Raphael.


Mes favoris


Contact